Description
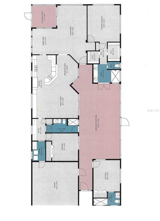
One or more photo(s) has been virtually staged. PRICED BELOW APPRAISAL! Welcome to 522 Newhall Lane, located in the gated Westridge community just a mile from DeBary Elementary. This is a one-of-a-kind home that beautifully blends craftsmanship, comfort and care. Lovingly built and maintained by the original owners, this residence stands apart with its high-end finishes, thoughtful upgrades and attention to detail that you simply won't find elsewhere in DeBary. From the moment you arrive, the quality is unmistakable. The expansive living room & dining room provide sophistication for more formal occasions. The rich, solid American cherry cabinetry with Baldwin hardware anchors the elegant kitchen which features Kitchen Aid stainless steel appliances, including a 4-burner natural gas cooktop, 36" convection/microwave oven, 48" refrigerator/freezer and 2-drawer dishwasher. Complementing the custom-designed kitchen is a spacious dinette with a beveled glass window overlooking the courtyard and a family room with an abundance of storage including a wine refrigerator for family time and those less formal get-togethers. Every solid-core bedroom door and louvered closet door is custom-made, adding to the sense of quality and refinement. The cherry cabinetry carries through to the three bathrooms, the well-appointed office and even the laundry room. Designer lighting fixtures, along with premium bath fixtures and tile finishes tie together a timeless interior look. The home's bright and thoughtful layout offers flexibility for a variety of lifestyles, including entertaining up to 20 guests at a seated holiday party with an on-site chef-prepared and served multi-course dinner. The 3rd bedroom with its ensuite bathroom has its own entry off the courtyard's entry hallway and provides a perfect retreat for a beloved family member or treasured guest, offering both comfort and privacy in a serene setting. Function meets beauty in this well-equipped home, complete with a whole-house natural gas-fired generator, tankless water heater and water conditioning system. The stunning 22' x 55' walled and screened courtyard offers a private outdoor retreat perfect for entertaining with a natural gas line for your grill and a spa circuit ready to be activated for your hot tub. Recent improvements make this home truly move-in ready. The HVAC system was replaced in late 2024, in mid-2025 light oak engineered-wood flooring replaced the original engineered-wood flooring complemented by the painted interior. The original porcelain, travertine and ceramic tile flooring has been cleaned and the grout sealed for long-lasting beauty. Both front and rear lawns were replaced in the Fall of 2025 and the grass is filling in nicely. The home has also been cleaned, so all that's left to do is move in and start making new memories. Built with pride and maintained with care, this property combines custom design, enduring materials and thoughtful updates. It is a true gem that you will be proud to call home.
-
3BEDS
-
0.14ACRES
-
3BATHS
-
01/2 BATHS
-
2,259SQFT
-
$221$/SQFT
School Information
Description
One or more photo(s) has been virtually staged. PRICED BELOW APPRAISAL! Welcome to 522 Newhall Lane, located in the gated Westridge community just a mile from DeBary Elementary. This is a one-of-a-kind home that beautifully blends craftsmanship, comfort and care. Lovingly built and maintained by the original owners, this residence stands apart with its high-end finishes, thoughtful upgrades and attention to detail that you simply won't find elsewhere in DeBary. From the moment you arrive, the quality is unmistakable. The expansive living room & dining room provide sophistication for more formal occasions. The rich, solid American cherry cabinetry with Baldwin hardware anchors the elegant kitchen which features Kitchen Aid stainless steel appliances, including a 4-burner natural gas cooktop, 36" convection/microwave oven, 48" refrigerator/freezer and 2-drawer dishwasher. Complementing the custom-designed kitchen is a spacious dinette with a beveled glass window overlooking the courtyard and a family room with an abundance of storage including a wine refrigerator for family time and those less formal get-togethers. Every solid-core bedroom door and louvered closet door is custom-made, adding to the sense of quality and refinement. The cherry cabinetry carries through to the three bathrooms, the well-appointed office and even the laundry room. Designer lighting fixtures, along with premium bath fixtures and tile finishes tie together a timeless interior look. The home's bright and thoughtful layout offers flexibility for a variety of lifestyles, including entertaining up to 20 guests at a seated holiday party with an on-site chef-prepared and served multi-course dinner. The 3rd bedroom with its ensuite bathroom has its own entry off the courtyard's entry hallway and provides a perfect retreat for a beloved family member or treasured guest, offering both comfort and privacy in a serene setting. Function meets beauty in this well-equipped home, complete with a whole-house natural gas-fired generator, tankless water heater and water conditioning system. The stunning 22' x 55' walled and screened courtyard offers a private outdoor retreat perfect for entertaining with a natural gas line for your grill and a spa circuit ready to be activated for your hot tub. Recent improvements make this home truly move-in ready. The HVAC system was replaced in late 2024, in mid-2025 light oak engineered-wood flooring replaced the original engineered-wood flooring complemented by the painted interior. The original porcelain, travertine and ceramic tile flooring has been cleaned and the grout sealed for long-lasting beauty. Both front and rear lawns were replaced in the Fall of 2025 and the grass is filling in nicely. The home has also been cleaned, so all that's left to do is move in and start making new memories. Built with pride and maintained with care, this property combines custom design, enduring materials and thoughtful updates. It is a true gem that you will be proud to call home.
© 2026 My Florida Regional MLS DBA Stellar MLS. All rights reserved. All listings displayed pursuant to IDX. All listing information is deemed reliable but not guaranteed and should be independently verified through personal inspection by appropriate professionals. Listings displayed on this website may be subject to prior sale or removal from sale; availability of any listing should always be independently verified. Listing information is provided for consumers personal, non-commercial use, solely to identify potential properties for potential purchase; all other use is strictly prohibited and may violate relevant federal and state law. Data last updated 2026-02-16T23:44:11.71.
