Description
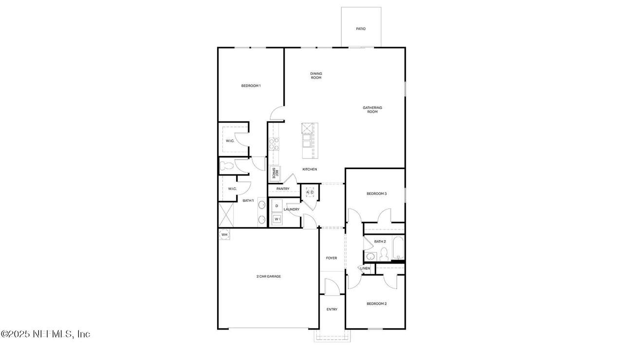
Welcome to the Aria, a thoughtfully designed new home floorplan that lives larger than its 1,714 square feet of living space. This single-story layout includes three bedrooms, two bathrooms, and a two-car garage, making it ideal for first-time buyers, downsizers, or anyone looking for a spacious and low-maintenance home. At the heart of the home is a bright, expansive layout that connects the kitchen, dining area, and living room. The kitchen features a large island that serves as a hub for cooking, casual dining, or entertaining. Whether you are hosting friends or enjoying a quiet night in, the Aria's layout makes everyday living both easy and enjoyable. Natural light fills the living spaces thanks to oversized windows that enhance the home's warm and inviting feel. The main suite is privately located and offers a large bathroom with a double vanity and walk-in shower, along with a generous walk-in closet that makes organizing a breeze. Two additional bedrooms provide space.
-
3BEDS
-
N/AACRES
-
2BATHS
-
01/2 BATHS
-
1,714SQFT
-
$195$/SQFT
School Information
Description
Welcome to the Aria, a thoughtfully designed new home floorplan that lives larger than its 1,714 square feet of living space. This single-story layout includes three bedrooms, two bathrooms, and a two-car garage, making it ideal for first-time buyers, downsizers, or anyone looking for a spacious and low-maintenance home. At the heart of the home is a bright, expansive layout that connects the kitchen, dining area, and living room. The kitchen features a large island that serves as a hub for cooking, casual dining, or entertaining. Whether you are hosting friends or enjoying a quiet night in, the Aria's layout makes everyday living both easy and enjoyable. Natural light fills the living spaces thanks to oversized windows that enhance the home's warm and inviting feel. The main suite is privately located and offers a large bathroom with a double vanity and walk-in shower, along with a generous walk-in closet that makes organizing a breeze. Two additional bedrooms provide space.
Related Properties
© 2026 Northeast Florida Multiple Listing Service, Inc. All rights reserved. The data relating to real estate for sale on this web site comes in part from the Internet Data Exchange (IDX) program of the Northeast Florida Multiple Listing Service, Inc. Real estate listings held by brokerage firms other than Beach State Realty are marked with the listing broker’s name and detailed information about such listings includes the name of the listing brokers. Data provided is deemed reliable but is not guaranteed. Data last updated 2026-01-16T00:24:52.287.
Digital Millennium Copyright Act
