Description
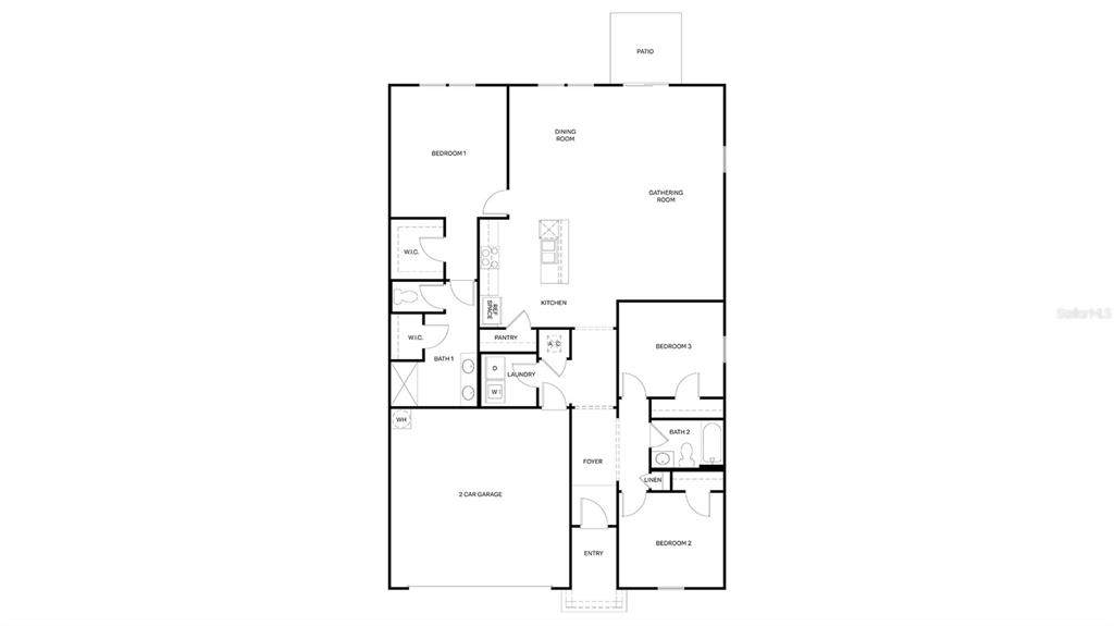
Under Construction. Welcome to the Aria, a thoughtfully designed new home floorplan that lives larger than its 1,714 square feet of living space. This single-story layout includes three bedrooms, two bathrooms, and a two-car garage, making it ideal for first-time buyers, downsizers, or anyone looking for a spacious and low-maintenance home. At the heart of the home is a bright, expansive layout that connects the kitchen, dining area, and living room. The kitchen features a large island that serves as a hub for cooking, casual dining, or entertaining. Whether you are hosting friends or enjoying a quiet night in, the Aria’s layout makes everyday living both easy and enjoyable. Natural light fills the living spaces thanks to oversized windows that enhance the home’s warm and inviting feel. The main suite is privately located and offers a large bathroom with a double vanity and walk-in shower, along with a generous walk-in closet that makes organizing a breeze. Two additional bedrooms provide space for family, guests, or a home office. Energy-efficient features and quality construction make the Aria a great choice for homeowners who want comfort, value, and style in a well-planned layout. With its modern finishes and flexible living space, the Aria is designed to fit a wide range of lifestyles.
-
3BEDS
-
0.13ACRES
-
2BATHS
-
01/2 BATHS
-
1,714SQFT
-
$195$/SQFT
School Information
Description
Under Construction. Welcome to the Aria, a thoughtfully designed new home floorplan that lives larger than its 1,714 square feet of living space. This single-story layout includes three bedrooms, two bathrooms, and a two-car garage, making it ideal for first-time buyers, downsizers, or anyone looking for a spacious and low-maintenance home. At the heart of the home is a bright, expansive layout that connects the kitchen, dining area, and living room. The kitchen features a large island that serves as a hub for cooking, casual dining, or entertaining. Whether you are hosting friends or enjoying a quiet night in, the Aria’s layout makes everyday living both easy and enjoyable. Natural light fills the living spaces thanks to oversized windows that enhance the home’s warm and inviting feel. The main suite is privately located and offers a large bathroom with a double vanity and walk-in shower, along with a generous walk-in closet that makes organizing a breeze. Two additional bedrooms provide space for family, guests, or a home office. Energy-efficient features and quality construction make the Aria a great choice for homeowners who want comfort, value, and style in a well-planned layout. With its modern finishes and flexible living space, the Aria is designed to fit a wide range of lifestyles.
Related Properties
© 2026 My Florida Regional MLS DBA Stellar MLS. All rights reserved. All listings displayed pursuant to IDX. All listing information is deemed reliable but not guaranteed and should be independently verified through personal inspection by appropriate professionals. Listings displayed on this website may be subject to prior sale or removal from sale; availability of any listing should always be independently verified. Listing information is provided for consumers personal, non-commercial use, solely to identify potential properties for potential purchase; all other use is strictly prohibited and may violate relevant federal and state law. Data last updated 2026-01-15T23:44:07.833.
