Description
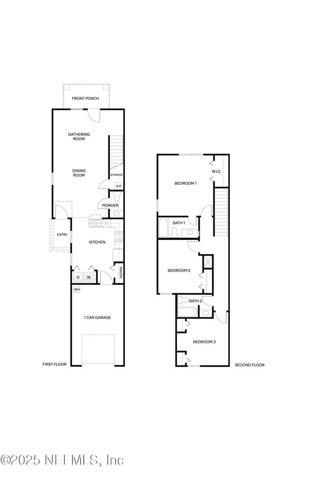
READY NOW! The Bailey offers 1,497 square feet of thoughtfully designed living space. This 3 bedroom, 2.5 bath townhome with a 1 car rear-entry garage blends style, comfort, and low-maintenance living in one smart layout. Enjoy relaxing on the charming front porch before stepping into an open-concept main floor perfect for everyday living and entertaining. The spacious kitchen flows seamlessly into the dining room and gathering room, creating a bright and welcoming space for hosting family and friends. Ample counter space and modern finishes make meal prep easy and enjoyable. Upstairs, all three bedrooms provide privacy and functionality. The owner's suite features a well-appointed en-suite bath and generous closet space. Two additional bedrooms share a full bath, making this home ideal for families, guests, or a home office setup. A convenient half bath is located on the first floor for visitors.
-
3BEDS
-
N/AACRES
-
2BATHS
-
11/2 BATHS
-
1,502SQFT
-
$199$/SQFT
School Information
Description
READY NOW! The Bailey offers 1,497 square feet of thoughtfully designed living space. This 3 bedroom, 2.5 bath townhome with a 1 car rear-entry garage blends style, comfort, and low-maintenance living in one smart layout. Enjoy relaxing on the charming front porch before stepping into an open-concept main floor perfect for everyday living and entertaining. The spacious kitchen flows seamlessly into the dining room and gathering room, creating a bright and welcoming space for hosting family and friends. Ample counter space and modern finishes make meal prep easy and enjoyable. Upstairs, all three bedrooms provide privacy and functionality. The owner's suite features a well-appointed en-suite bath and generous closet space. Two additional bedrooms share a full bath, making this home ideal for families, guests, or a home office setup. A convenient half bath is located on the first floor for visitors.
Related Properties
© 2026 Northeast Florida Multiple Listing Service, Inc. All rights reserved. The data relating to real estate for sale on this web site comes in part from the Internet Data Exchange (IDX) program of the Northeast Florida Multiple Listing Service, Inc. Real estate listings held by brokerage firms other than Beach State Realty are marked with the listing broker’s name and detailed information about such listings includes the name of the listing brokers. Data provided is deemed reliable but is not guaranteed. Data last updated 2026-04-15T07:26:09.357.
Digital Millennium Copyright Act
