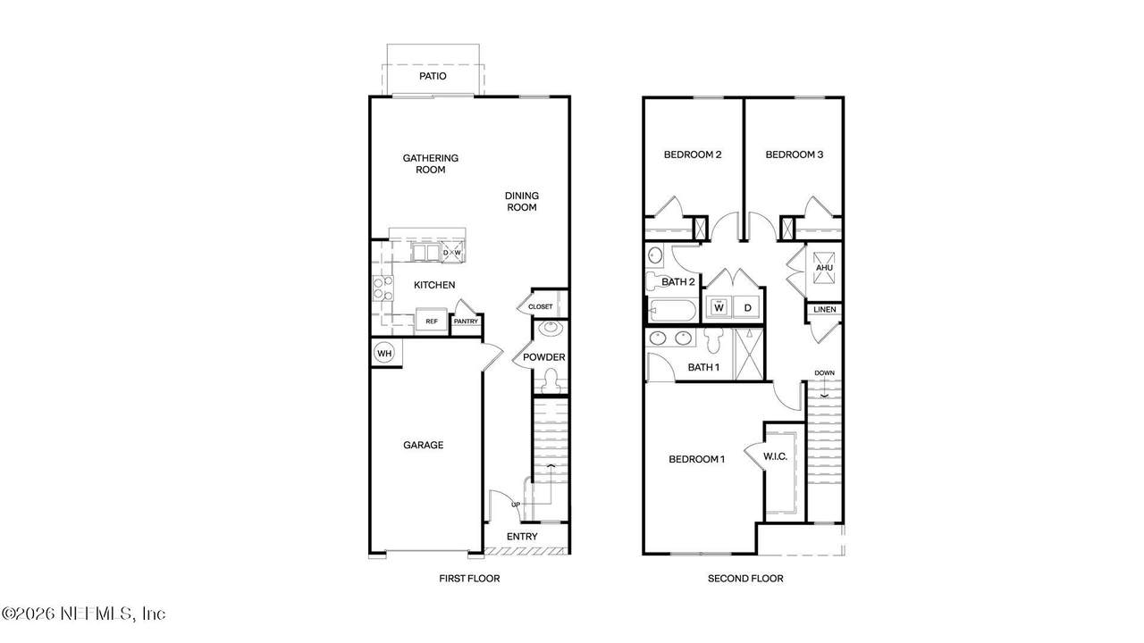
Description
The Pearson townhome offers a smart and inviting design that makes the most of every square foot, delivering approximately 1,468 square feet of comfortable living space with three bedrooms and 2.5 bathrooms. This well-planned layout creates a sense of openness from the moment you enter, with the kitchen, dining area, and main living space flowing together to support both daily routines and special gatherings. The kitchen is designed as a true focal point, featuring an oversized bar that provides plenty of room for meal preparation, casual dining, and connecting with guests while you cook. Large sliding glass doors off the living area bring in an abundance of natural light, brightening the home and creating a warm, welcoming atmosphere throughout the day. Upstairs, the primary bedroom serves as a private retreat, complete with a spacious walk-in closet and a well-appointed bathroom with a large vanity. Two additional bedrooms offer flexibility for family, guests, or a home office.
-
3BEDS
-
N/AACRES
-
2BATHS
-
11/2 BATHS
-
1,468SQFT
-
$185$/SQFT
Description
The Pearson townhome offers a smart and inviting design that makes the most of every square foot, delivering approximately 1,468 square feet of comfortable living space with three bedrooms and 2.5 bathrooms. This well-planned layout creates a sense of openness from the moment you enter, with the kitchen, dining area, and main living space flowing together to support both daily routines and special gatherings. The kitchen is designed as a true focal point, featuring an oversized bar that provides plenty of room for meal preparation, casual dining, and connecting with guests while you cook. Large sliding glass doors off the living area bring in an abundance of natural light, brightening the home and creating a warm, welcoming atmosphere throughout the day. Upstairs, the primary bedroom serves as a private retreat, complete with a spacious walk-in closet and a well-appointed bathroom with a large vanity. Two additional bedrooms offer flexibility for family, guests, or a home office.
© 2026 Northeast Florida Multiple Listing Service, Inc. All rights reserved. The data relating to real estate for sale on this web site comes in part from the Internet Data Exchange (IDX) program of the Northeast Florida Multiple Listing Service, Inc. Real estate listings held by brokerage firms other than Beach State Realty are marked with the listing broker’s name and detailed information about such listings includes the name of the listing brokers. Data provided is deemed reliable but is not guaranteed. Data last updated 2026-04-15T07:26:09.357.
Digital Millennium Copyright Act
